Beschrijving
Ruime, luxe afgewerkte tussenwoning met vijf slaapkamers, zonnige tuin en ultiem wooncomfort
Welkom aan de Leliekeverstraat 30, een woning die veel verwachtingen overtreft. Hier ervaart u niet zomaar woonruimte, maar een combinatie van comfort, luxe en een ongekend gevoel van thuiskomen. Deze uitgebouwde tussenwoning met maar liefst vijf slaapkamers is tot in detail verzorgd en straalt kwaliteit en stijl uit. Met een moderne keuken, een nieuwe badkamer, zonnepanelen en recent schilderwerk biedt dit huis alles wat u zich kunt wensen en meer.
Royale woonkamer met een zee van licht
Bij binnenkomst merkt u het direct: deze woning ademt ruimte. De uitgebouwde woonkamer is een ware blikvanger. Dankzij de grote aluminium schuifpui en de openslaande deur valt het daglicht rijkelijk naar binnen en ontstaat er een vloeiende verbinding tussen binnen en buiten. De convectorverwarming in de vloer zorgt niet alleen voor een strak afgewerkte uitstraling, maar ook voor een behaaglijke warmte. Het is de perfecte plek om te genieten van gezellige familiemomenten of ontspannen avonden met vrienden.
Keuken van topklasse
De moderne keuken is een absolute droom voor kookliefhebbers. Uitgevoerd in stijlvolle taupe- en bruintinten, voorzien van een composieten werkblad, spatvrije achterwand én een stijlvolle witte kastenwand met hoogwaardige inbouwapparatuur. Zo combineert deze keuken schoonheid met functionaliteit. Hier bereidt u moeiteloos de meest verfijnde gerechten, terwijl u volop geniet van de luxe uitstraling en de praktische indeling.
Slaapcomfort en luxe badkamer
De eerste verdieping biedt drie ruime slaapkamers, allen voorzien van een mooie pvc vloer. De nieuwe badkamer is een toonbeeld van hedendaagse luxe: een dubbele wastafel, inloopdouche, moderne designradiator, tweede toilet en vloerverwarming creëren een gevoel van pure wellness. De scheidingswand met een speels mozaïkpatroon, voegen een vleugje elegantie toe en maken van de badkamer een stijlvolle blikvanger.
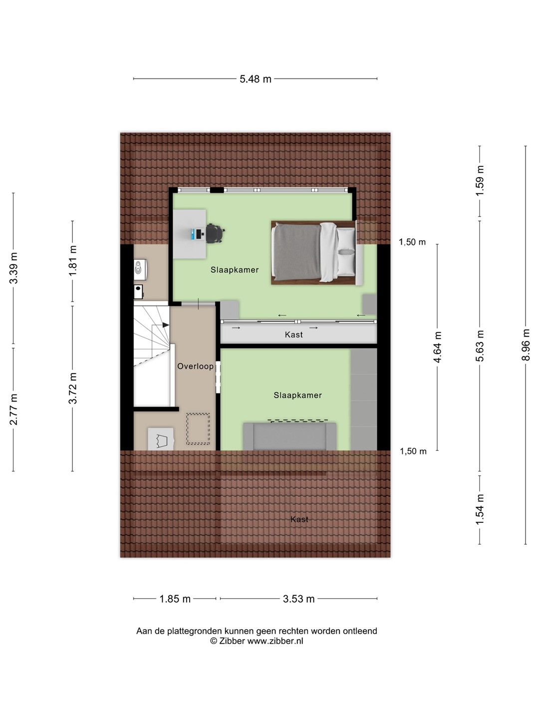
Verrassend ruime zolder met twee extra kamers
De tweede verdieping verrast met nog twee volwaardige slaapkamers. Aan de achterzijde zorgt een groot dakkapel met zonwering voor extra licht en ruimte, terwijl aan de voorzijde een royaal Veluxraam met hor en verduistering dezelfde luxe biedt. Deze verdieping is ideaal als werkruimte, hobbykamer of extra slaapkamers, de mogelijkheden zijn eindeloos.
Op de overloop is de opstelplaats voor het witgoed en hier vindt u ook de Remeha cv-ketel CW5(2017) en omvormer voor de zonnepanelen.
Genieten in de zonnige tuin
Naast de praktische voortuin is er een fijne achtertuin en dat is een oase van rust en ontspanning. Met meerdere terrassen, ruime berging, achterom, elektrische zonwering en veel privacy, is dit de perfecte plek om de lange zomerdagen te vieren. Gezien de gunstige zonligging kan dat in de zomermaanden tot in de avond. Hier combineert u gezelligheid met comfort, in een groene setting waar u zich direct thuis voelt.
Duurzaam en zorgeloos wonen
Deze woning is niet alleen prachtig afgewerkt, maar ook voorzien van slimme extra’s die het leven aangenamer maken. Vrijwel alle ramen en deuren zijn voorzien van horren, er liggen maar liefst zeven zonnepanelen op het dak en het buitenschilderwerk is in 2024 volledig uitgevoerd. Dankzij de parkeerhaven voor de deur heeft u bovendien vrijwel altijd plek voor de auto.
Centrale en kindvriendelijke ligging
De Leliekeverstraat staat bekend om zijn rustige, kindvriendelijke karakter. U woont hier op loopafstand van bushaltes, speeltuinen en het schitterende natuurgebied de Nieuwe Driemanspolder. Scholen, winkels en sportvoorzieningen bevinden zich op korte afstand en via de nabijgelegen uitvalswegen bent u binnen enkele minuten op de A4, A12 en A13. Kortom: een toplocatie waar rust, natuur en bereikbaarheid samenkomen.
Samengevat
* Tussenwoning (bouwjaar 2000)
* Woonoppervlakte 139,3 m² – Perceel 142 m² – Inhoud 495 m³
* Uitgebouwde woonkamer met schuifpui en convectorverwarming
* Hoogwaardige keuken (2021) in taupe- en bruintinten met composieten werkblad en inbouwapparatuur
* Nieuwe badkamer (2022) met luxe afwerking, inloopdouche, dubbele wastafel, vloerverwarming en tweede toilet
* Drie fijne slaapkamers op de eerste verdieping
* Twee extra kamers op zolder, een met dakkapel en de ander met een Veluxraam, beide voorzien van zonwering en horren
* Vrijwel alle ramen/deuren in de woning zijn voorzien van horren
* Zeven zonnepanelen (Longi Solar LR4 370WP-2022) – aantrekkelijke energierekening
* Buitenschilderwerk uitgevoerd in 2024
* Zonnige achtertuin met diverse terrassen en elektrische zonwering
* Parkeerhaven voor de deur, altijd plek
* Rustige, kindvriendelijke ligging nabij openbaar vervoer, scholen, winkels en natuurgebied
* Oplevering in overleg
Is uw interesse gewekt?
Wacht niet te lang en bel het Makelaarscentrum Leidschenveen voor het maken van een afspraak.
De informatie is met zorg samengesteld, aan de juistheid kunnen echter geen rechten worden ontleend. Alle opgegeven maten en oppervlakten zijn indicatief. De woning is gemeten met gebruikmaking van de Meetinstructie, die is gebaseerd op de normen zoals vastgelegd in NEN 2580. De algemene verkoopvoorwaarden staan vermeld op onze website, wij werken conform de Algemene Consumentenvoorwaarden van VBO Makelaar. Heeft u vragen over dit object of over onze dienstverlening neemt u dan gerust contact met ons op.
Kortom, bel ons voor het maken van een afspraak of schakel direct uw eigen VastgoedNed/NVM aankoopmakelaar in. Uw aankoopmakelaar komt op voor uw belang en bespaart u veel tijd, geld en zorgen.