Beschrijving
Stijlvol wonen boven het winkelcentrum – Simon Carmiggelthof 248
Een 4-kamer stadswoning met garage, dakterras en alle faciliteiten op steenworp afstand
Midden in het hart van Leidschenveen, direct boven het winkelcentrum, wacht een bijzondere stadswoning met appartementsrecht die ruimte, comfort en luxe op bijzondere wijze combineert. Met een royaal woonoppervlak van 129 m², drie volwaardige slaapkamers, een zonnig terras en een vaste parkeerplaats in de beveiligde garage, biedt deze woning alles wat u zich kunt wensen.
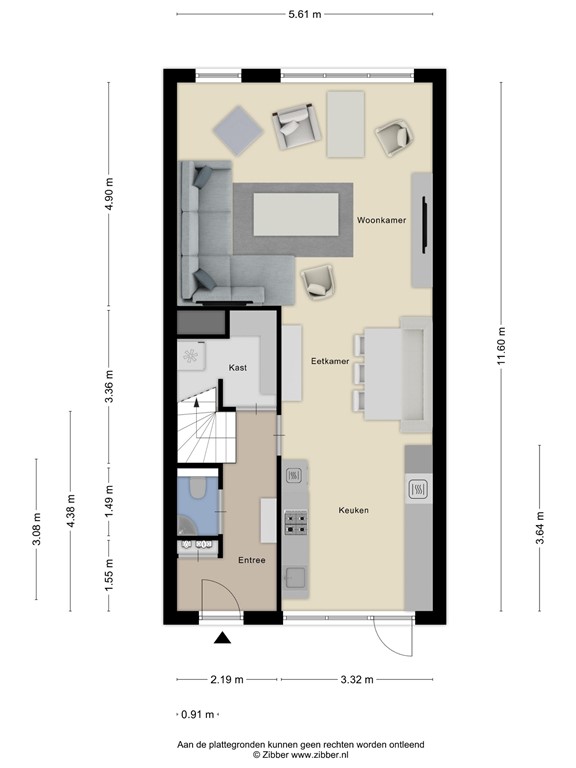
Fijne entree
Bij binnenkomst ervaart u meteen de royale opzet. De hal is niet alleen ruim, maar biedt dankzij de grote bergkast extra mogelijkheden: van voorraad en huishoudelijke apparaten tot een plek voor de kussens van uw terrasmeubilair. Praktisch én verzorgd.
Een woonkamer met allure en sfeer
De living is ronduit indrukwekkend. Dankzij de hoge ramen stroomt het daglicht naar binnen en geniet u van een weids uitzicht over het groen en de fraaie woonomgeving. De vloer in pvc geeft een moderne uitstraling en de sfeervolle haard zorgt voor warmte en gezelligheid, een stijlvolle setting voor lange avonden met familie en vrienden.
Een keuken waar koken een feest is
De keuken is uitgevoerd in hoogwaardig hout met een granieten werkblad, voorzien van degelijke Miele-inbouwapparatuur. Alle kasten zijn uitgerust met laden voor optimaal gebruiksgemak. Via de openslaande deuren loopt u zo het terras op. Dankzij de slimme kickspace-verwarming in de plint is het hier zelfs in de winter behaaglijk.
Comfortabele verdieping met hoge plafonds
Op de eerste etage bevinden zich drie slaapkamers die door hun hoge plafonds een uitzonderlijk ruimtelijk gevoel geven. De badkamer ademt luxe met een whirlpool, bidet, designradiator en een royaal wastafelmeubel met verlichting. Naast de slaapkamers (sommige) met vaste kasten, vindt u een groot washok met cv-installatie (Nefit, 2018) en veel bergruimte.
Buitenleven op uw eigen terras
Het terras ligt perfect op het zuidwesten, waardoor u tot laat in de avond geniet van zon en privacy. Een ideale plek voor een glas wijn of een ontspannen diner buiten met uitzicht op de groene daktuin.
Duurzaam en energiezuinig
De woning is volledig geïsoleerd en beschikt over energielabel A. Comfort en duurzaamheid gaan hier hand in hand.
Een locatie met ongeëvenaarde voordelen
Alles ligt aan uw voeten: winkels, horeca, kinderopvang en openbaar vervoer. Binnen twee minuten staat u op station Leidschenveen en binnen een kwartier in Den Haag, Scheveningen of Zoetermeer. Uitvalswegen A4, A12 en A13 liggen om de hoek. Bovendien beschikt u over een eigen parkeerplaats in de beveiligde garage en een separate berging – een groot voordeel in dit bruisende stadsdeel.
Samengevat – wonen op het hoogste niveau
- 129 m² woonoppervlak, bouwjaar 2009
- Royale woonkamer met veel licht en sfeerhaard
- Luxe keuken met graniet en Miele-apparatuur
- Drie ruime slaapkamers en complete badkamer met whirlpool
- Zonnig terras op het zuidwesten
- Energielabel A, cv Nefit 2016
- Vaste parkeerplaats in beveiligde garage en separate (fietsen)berging
- Gezonde VvE, bijdrage € 218,72,- p/m woning en € 30,38 p/m garage
- Oplevering kan snel
- Toplocatie boven het winkelcentrum, nabij station en uitvalswegen
Is uw interesse gewekt?
Wacht niet te lang en bel Makelaarscentrum Leidschenveen voor het maken van een afspraak.
De informatie is met zorg samengesteld, aan de juistheid kunnen echter geen rechten worden ontleend. Alle opgegeven maten en oppervlakten zijn indicatief. De woning is gemeten met gebruikmaking van de Meetinstructie, die is gebaseerd op de normen zoals vastgelegd in NEN 2580. De algemene verkoopvoorwaarden staan vermeld op onze website, wij werken conform de Algemene Consumentenvoorwaarden van Vastgoed Nederland. Heeft u vragen over dit object of over onze dienstverlening neemt u dan gerust contact met ons op.
Bel ons voor het maken van een afspraak of schakel direct uw eigen aankoopmakelaar in. Uw aankoopmakelaar komt op voor uw belang en bespaart u veel tijd, geld en zorgen.
Plattegronden
176701789_1578412_simon_begane_grond_tu_first_design_20250915_527877.jpg
176701789_1578412_simon_begane_grond_first_design_20250915_b4f7d8.jpg
176701789_1578412_simon_eerste_verdiepi_first_design_20250915_1c8378.jpg
176701789_1578412_simon_berging_first_design_20250915_5de4ed.jpg