| Adres: | Kamilleveld 104, 2492 KH Den Haag |
| Prijs | € 725.000,- k.k. |
| Type object | Woonhuis, eengezinswoning, tussenwoning |
| Perceeloppervlakte | 145 m² |
| Woonoppervlakte | 162,3 m² |
| Aanvaarding | In overleg |
| Status | Verkocht onder voorbehoud |
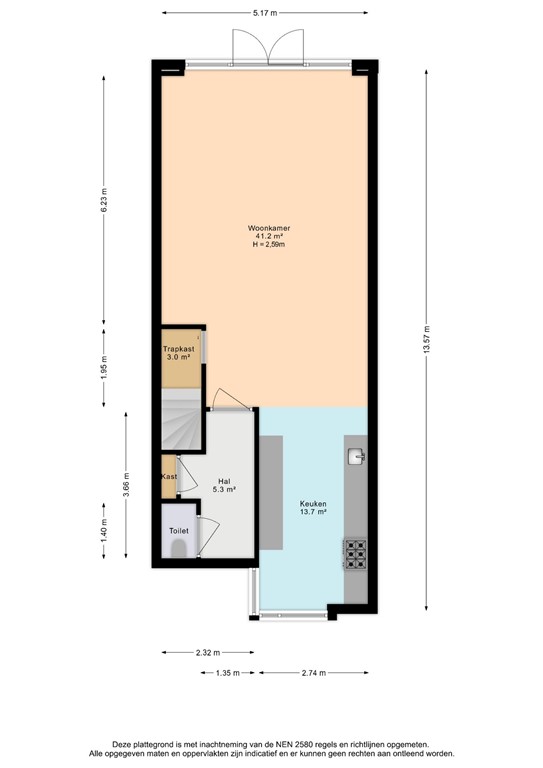
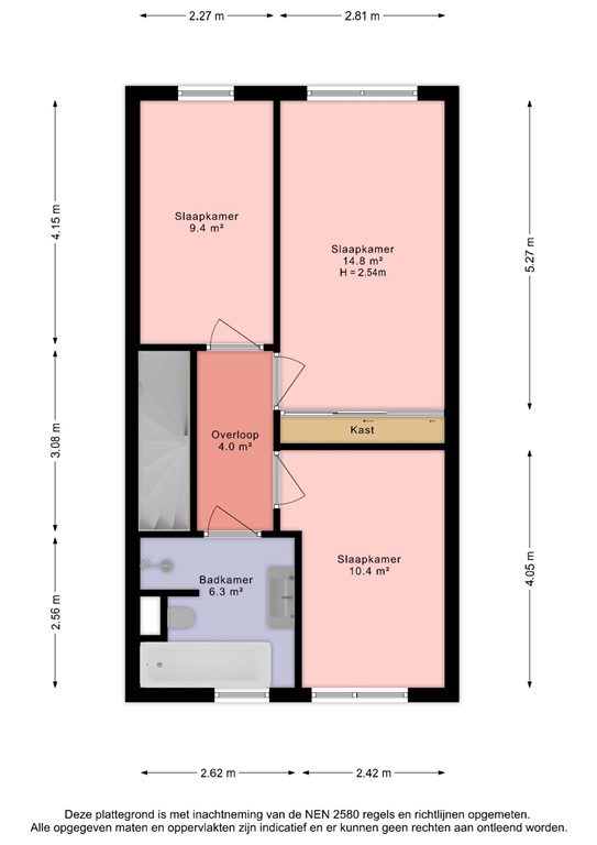
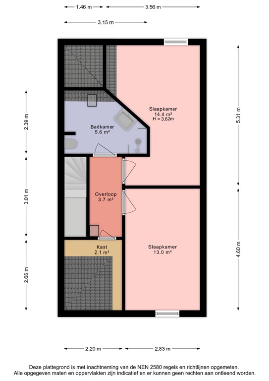
Groots in ruimte, rijk aan comfort – energiezuinig wonen met allure Hoe fijn is het om een huis binnen te lopen waar volop liefde en aandacht in is gestoken? Ervaar het zelf, in deze royale uitgebouwde en energiezuinige gezinswoning! Op de begane grond een nieuw plafond, nieuwe deuren en nieuwe keukenapparatuur. Op beide verdiepingen nieuwe vloeren. Een extra nieuwe badkamer en (derde) zwevend toilet op de tweede verdieping. Overal recent stuc- en schilderwerk, hoogwaardige internetbekabeling, veiligheidssloten én airco’s in zowel de woonkamer als drie slaapkamers. =>Nu al interesse? Ga naar de site van Makelaarscentrum-Leidschenveen.nl en plan zelf je afspraak in. Snel, simpel en wanneer het jou uitkomt (24/7) Warm en sfeervol wonen, luxe koken in stijl De ruime en lichte entree is voorzien van een warme hardhouten sucupira vloer. Door de nieuwe glazen deur ziet u dat de planken doorlopen in de woonkamer. Daar binnengekomen voelt u hoe ruimte en rust optimaal samenvallen. Het verlaagde plafond – voorzien van inbouwspots – zorgt ervoor dat ook de bovenkant van de ruimte één naadloos geheel vormt. De achterzijde is een grote raampartij met openslaande deuren naar de tuin en de voorzijde sluit daar mooi op aan. Hier bevindt zich de keuken die een luxe en stijlvolle uitstraling heeft, met hoogglans witte laden en kasten, een prachtig granieten werkblad, 5-pits gasfornuis, een Quooker en twee nieuwe Studioline Siemens ovens, waarvan één met stoom- en magnetronfunctie. De airco die u in de woonkamer ziet, zorgt zowel voor verwarming als verkoeling. Dit zorgt voor een zeer laag gasverbruik en een flinke besparing op uw energiekosten! Heerlijk ontspannen op de eerste verdieping Via de vernieuwde trap bereikt u de eerste verdieping waar u drie slaapkamers aantreft. Twee ervan kijken uit op de achtertuin en de derde op de voorzijde van het huis. Stuk voor stuk zijn het fijne, lichte ruimtes, recent geschilderd en allemaal voorzien van nieuwe laminaatvloeren. De overloop is tevens recent gestuct. De badkamer is uitgevoerd in antraciet-wit tegelwerk en beschikt over een ligbad, inloopdouche, dubbel wastafelmeubel, handdoek radiator en tweede zwevend toilet en een raam voor natuurlijke lichtinval en extra ventilatie. Het sanitair van Villeroy & Bosch zorgt voor een luxe kwaliteitsuitstraling. Een méér dan complete tweede verdieping De gehele tweede verdieping is volledig gerenoveerd waarbij nog een extra vijfde slaapkamer is gerealiseerd. Door de grote dwarskapconstructie zijn er hoge nokken en extra veel ruimte ontstaan, waardoor een dakkapel overbodig is. Voor extra lichtinval is een groot Velux-dakraam met zonwering in de overloop geplaatst. De bonus van deze verdieping is de tweede nieuwe badkamer voorzien van wastafel, instapdouche met rainshower, elektrische vloerverwarming, een derde zwevend toilet en tevens een groot Velux-dakraam met zonwering en hor. In dezelfde ruimte is ook de witgoedopstelling, de nieuwe CW6 Cv-ketel met boiler (40L) wat zorgt voor voldoende warm water voor beide badkamers. NB: De hoofdslaapkamer op de eerste verdieping en de twee slaapkamers op de tweede verdieping zijn voorzien van een airco-unit voor zowel verwarming als verkoeling . Tevens is er een extra berging én een compacte vliering gerealiseerd. Achtertuin: omringd door kwaliteit, genieten van quality time Terug op de begane grond nodigen we u graag uit om via de dubbele openslaande deuren (voorzien van horren) de achtertuin te verkennen. De tuin is ruim 11 meter diep, opgebouwd uit twee terrassen met keramische tegels en omringd door hardhouten Bangkirai schuttingen. De verspringing in hoogte én de ligging op het zuidwesten nodigen uit om hier veel quality time met elkaar door te brengen. Het elektrische zonnescherm tegen de achtergevel zorgt ervoor dat u ook in warme periodes heerlijk van de buitenruimte kunt genieten. De houten berging biedt plaats voor fietsen en gereedschap en is bereikbaar via een achterom. Opent u de schuttingdeur, dan ziet u bovendien dat aan de achterkant van de woning een ruime groenstrook ligt. Die zorgt voor naast de gewenste privacy ook voor extra ruimtebeleving, én een fijne speelruimte voor uw kinderen. Centraal gelegen: alle voorzieningen dichtbij Deze woning heeft alle voorzieningen dichtbij. Basisschool De Balans, BSO en kinderopvang vindt u aan de overzijde, andere scholen (waaronder de British school) zijn op fietsafstand. Het winkelcentrum en het gezondheidscentrum zijn op loopafstand. In de omgeving zijn veel speelmogelijkheden voor verschillende leeftijdsgroepen. Er is een tramhalte op 50 m lopen (directe verbinding naar de Mall of the Netherlands en HMC Antoniushove), een bushalte op 100 m afstand en de uitvalswegen A4 en A12 liggen op een paar autominuten. En wie van fietsen of wandelen houdt, komt aan zijn trekken in onder meer de Nieuwe Driemanspolder. Samengevat: • Royaal uitgebouwde en energiezuinige gezinswoning met veel recente vernieuwingen • Woonoppervlak 162,3 m², inhoud woning 532 m³, gemeten volgens NEN2580 • Perceelgrootte 145 m², volledig eigendom • Lichte en ruime entree met zwevend toilet • Sfeervolle en ruime woonkamer voorzien van een hardhouten vloer en openslaande deuren naar de 11 m diepe tuin • Luxe keuken met 5-pits gasfornuis, granieten werkblad en diverse nieuwe inbouwapparatuur • Drie ruime slaapkamers op de eerste verdieping • Badkamer voorzien van inloopdouche, ligbad, dubbele wastafel, zwevend toilet en groot raam • Vierde en vijfde slaapkamer op de tweede verdieping (2024) • Tweede nieuwe badkamer met wastafel, inloopdouche en een 3e zwevend toilet (2024) • Nieuwe laminaatvloeren op de verdiepingen • Vernieuwde trappen • Nieuwe Cv-ketel Remeha Calenta CW6 met 40 liter boiler (2023) en MV-box • 9 zonnepanelen (REC Twinpeak 4 Black 360 WP) met Enphase IQ7 micro-omvormers (2021) • Energielabel A • Airco’s in de woonkamer en drie slaapkamers met twee buitenunits • Achtertuin met verspringend tegelterras, gelegen op het zuidwesten • Houten berging met achterom • Drie sterren veiligheidssloten • Parkeermogelijkheden in de straat • Centraal gelegen nabij alle faciliteiten en openbaar vervoer • Opgang naar diverse uitvalswegen A4/A12 in een paar minuten rijden • Oplevering in overleg Is je interesse gewekt? =>Ga naar de site van Makelaarscentrum-Leidschenveen.nl en plan zelf je afspraak in. Snel, simpel en wanneer het jou uitkomt (24/7) Deze informatie is met zorg samengesteld, aan de juistheid kunnen echter geen rechten worden ontleend. Alle opgegeven maten en oppervlakten zijn indicatief. De woning is gemeten met gebruikmaking van de Meetinstructie, die is gebaseerd op de normen zoals vastgelegd in NEN 2580. De algemene verkoopvoorwaarden staan vermeld op onze website, wij werken conform de Algemene Consumentenvoorwaarden van Vastgoed Nederland. Heeft u vragen over dit object of over onze dienstverlening, neemt u dan gerust contact met ons op. Kortom, bel ons voor het maken van een afspraak of schakel direct uw eigen aankoopmakelaar in. Uw aankoopmakelaar komt op voor uw belang en bespaart u veel tijd, geld en zorgen
| Referentienummer | 00743 |
| Vraagprijs | € 725.000,- k.k. |
| Inrichting | Ja |
| Inrichting | Gestoffeerd |
| Status | Verkocht onder voorbehoud |
| Aanvaarding | In overleg |
| Aangeboden sinds | Maandag 23 februari 2026 |
| Laatste wijziging | Woensdag 1 april 2026 |
| Type object | Woonhuis, eengezinswoning, tussenwoning |
| Soort bouw | Bestaande bouw |
| Bouwperiode | 2007 |
| Dakbedekking | Dakpannen |
| Type dak | Dwarskap |
| Isolatievormen | Dubbel glas HR-glas Spouwmuren Volledig geïsoleerd |
| Perceeloppervlakte | 145 m² |
| Woonoppervlakte | 162,3 m² |
| Keukenoppervlakte | 14,71 m² |
| Inhoud | 532 m³ |
| Oppervlakte overige inpandige ruimten | 2,1 m² |
| Aantal bouwlagen | 3 |
| Aantal kamers | 6 (waarvan 5 slaapkamers) |
| Aantal badkamers | 2 (en 1 apart toilet) |
| Ligging | Aan rustige weg Dichtbij openbaar vervoer In woonwijk Nabij school Nabij snelweg |
| Type | Achtertuin |
| Hoofdtuin | Ja |
| Oriëntering | Zuid-west |
| Heeft een achterom | Ja |
| Staat | Goed onderhouden |
| Tuin 2 - Type | Voortuin |
| Tuin 2 - Oriëntering | Noord-oost |
| Tuin 2 - Staat | Goed onderhouden |
| Energielabel | A |
| CV ketel | Remeha Calente Ace 40L CW6 |
| Warmtebron | Gas |
| Bouwjaar | 2023 |
| Combiketel | Ja |
| Eigendom | Eigendom |
| Warm water | CV-ketel |
| Verwarmingssysteem | Airconditioning Centrale verwarming Vloerverwarming (gedeeltelijk) |
| Ventilatie methode | Mechanische ventilatie |
| Keukenvoorzieningen | Inbouwapparatuur |
| Badkamervoorzieningen Badkamer 1 | Dubbele wastafel Inloopdouche Ligbad Toilet Vloerverwarming Wastafelmeubel |
| Badkamervoorzieningen Badkamer 2 | Inloopdouche Toilet Wasmachineaansluiting Wastafel Wastafelmeubel |
| Heeft airco | Ja |
| Glasvezelaansluiting aanwezig | Ja |
| Tuin aanwezig | Ja |
| Heeft domotica | Ja |
| Heeft schuur/berging | Ja |
| Heeft een dakraam | Ja |
| Heeft zonwering | Ja |
| Heeft zonnepanelen | Ja |
| Heeft ventilatie | Ja |
| Kadastrale aanduiding | 's-Gravenhage BD 6190 |
| Perceeloppervlakte | 145 m² |
| Omvang | Geheel perceel |
| Eigendomsituatie | Eigen grond |