| Adres: | Graskarpersingel 50, 2492 MV Den Haag |
| Prijs | € 629.000,- k.k. |
| Type object | Woonhuis, eengezinswoning, tussenwoning |
| Perceeloppervlakte | 156 m² |
| Woonoppervlakte | 155,8 m² |
| Aanvaarding | In overleg |
| Status | Verkocht onder voorbehoud |
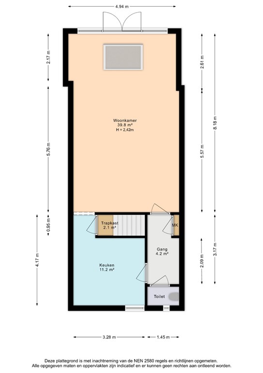
** For translation use the English Funda version** Zeer royale 6-kamer gezinswoning met diepe achtertuin en vrij uitzicht Deze geschakelde tussenwoning is zo’n plek waar u zich direct prettig voelt. De uitgebouwde, zonnige woonkamer van maar liefst 40 m², het vrije uitzicht aan de voorzijde en de 14 meter diepe tuin aan de achterzijde zorgen samen voor een ontspannen woonervaring. Een comfortabel 156 m² groot familiehuis op een rustige locatie, met alle voorzieningen binnen handbereik. Nu al interesse? Ga dan naar de site van Makelaarscentrum-Leidschenveen.nl en plan zelf uw afspraak in. Snel, simpel en wanneer het u uitkomt (24/7). De woonkamer: het warme hart van het huis U komt binnen in een brede hal, waar de laminaatvloer — met daaronder plavuizen en vloerverwarming — meteen zorgt voor een aangename sfeer. De uitgebouwde woonkamer met maar liefst 40 m² leef genot is het hart van het huis. Dankzij de brede glaspartijen en de grote lichtkoepel valt het daglicht hier royaal binnen wat het ruimtelijk gevoel extra benadrukt. De woonkamer voelt daardoor open en vriendelijk, een plek waar u graag samenkomt, leest, speelt of gewoon even tot rust komt. Aan de achterzijde kijkt u uit op de diepe tuin. Aparte, moderne keuken met vrij uitzicht De keuken ligt in een aparte ruimte aan de voorzijde van de woning en heeft een moderne uitstraling door de hoogglans zwarte fronten en het kunststof werkblad. De opstelling tegen één wand geeft u veel bewegingsruimte. Vanuit het raam kijkt u ver weg over de omgeving — een fijne plek om de dag te beginnen en om aan het einde van de dag de maaltijd te bereiden. Ook hier weer die heerlijke vloerverwarming die het verblijf extra comfortabel maakt. Eerste verdieping: drie slaapkamers en een badkamer Via de houten trap bereikt u de eerste verdieping. Hier vindt u drie lichte slaapkamers, waarvan de grootste aan de voorzijde ligt met uitzicht op water en groen. De andere twee kamers kijken uit op de achtertuin. De badkamer is voorzien van een douche-/ligbadcombinatie, wastafel met spiegelkast en een tweede toilet. Tweede verdieping: twee zeer ruime slaapkamers De bovenste verdieping is één van de verrassingen van dit huis. Geen dakterras aan de achterzijde wat vaak gebruikelijk is, maar hier is geïnvesteerd in een giga opbouw waardoor er een extra grote master bedroom is gecreëerd. Uitkijkend over de achtertuin, is dit de grootste slaapkamer en een heerlijke plek om te zijn. Ruim, rustig en voorzien van een eigen walk in closet. Een perfecte ouderslaapkamer, maar ook een droomplek voor een puber die graag zijn of haar eigen domein heeft. Desgewenst zou u hier zelfs een badkamer-en-suite en/of een kitchenette kunnen realiseren zodat het een semi-zelfstandige ruimte wordt. De tweede kamer is ook ruim en heeft een prachtig vrij uitzicht. Hier kunt u alle kanten op: een atelier, een inspirerende werkplek aan huis, een hobbyruimte of een compacte fitnessstudio, het past hier allemaal. Vanuit deze kamer bereikt u ook de cv ketel en de witgoedopstelling. Genieten van zon en schaduw in de diepe achtertuin De bijzonder diepe 14 meter achtertuin ligt op het noordoosten en is verzorgd aangelegd met verschillende tegelpatronen wat zorgt voor een strak en toch speels karakter. De tuin is onderhoudsvrij en nodigt uit om uw creativiteit de vrije loop te laten met bijvoorbeeld kleurrijke potten, bloemen en struiken. Bovendien is hier alle ruimte om zitjes te creëren en steeds te kiezen of u in de zon wilt zitten of in de schaduw. De houten schuur (met vernieuwd dak in 2023) biedt ruimte voor fietsen en tuingereedschap en is ook bereikbaar via de achterom. Ook aan de voorzijde kunt u heerlijk zitten. De straat is rustig, er is voldoende parkeerruimte en laadpalen zijn dichtbij. Rustige ligging met alles binnen handbereik Winkelcentrum, scholen (waaronder de British School) en kinderopvang vindt u op enkele fietsminuten. Speel- en recreatievoorzieningen zijn er op loopafstand, sportveldjes vindt u op de groenstrook aan de overkant. De uitvalswegen A4, A12 en A13 bereikt u binnen een paar autominuten. Stapt u op de fiets, dan bent u binnen vijf minuten bij het openbaar vervoer richting Den Haag en Zoetermeer. Fietsend bent u ook in korte tijd bij de sluisjes in Leidschendam, waar u leuke terrasjes en restaurants vindt. Het groengebied begint vlakbij uw woning; u kunt zo doorfietsen naar het Westerpark en de Nieuwe Driemanspolder. De kracht van lokale kennis Bent u bekend met deze omgeving of komt u hier voor het eerst? Geen zorgen, onze lokale makelaar kent deze buurt als geen ander. Hij woont en werkt in de omgeving, kent de buurt door en door en weet precies wat deze plek zo bijzonder maakt. Hij vertelt u graag hoe het is om hier te wonen: rustig, groen en toch dichtbij alle voorzieningen. Samenvattend: • Geschakelde tussenwoning met vrij uitzicht aan de voorzijde • Woonoppervlak ca. 155,8 m², inhoud 497,4 m³, gemeten volgens NEN 2580 • Perceel 156 m², volledig eigendom • Ruime hal met toilet • Laminaatvloer, voorzien van vloerverwarming, die doorloopt over de gehele BG • Zonnige, uitgebouwde woonkamer met grote glaspartijen en lichtkoepel • Aparte keuken met moderne uitstraling en voorzien van inbouwapparatuur • Eerste verdieping met drie lichte slaapkamers • Badkamer met een douche-/ligbadcombinatie, wastafel met spiegelkast en tweede toilet Tweede verdieping: twee zeer ruime slaapkamers, waarvan één met walk-in-closet • Tapijtvloeren op beide verdiepingen • Cv-ketel (Intergas, 2018), MV-box en witgoedopstelling op de overloop • Energiezuinige woning voorzien van vloerverwarming & HR++ glas=> Energielabel A • Verzorgd aangelegde, zeer diepe achtertuin met houten berging; betegelde voortuin • Ruime parkeerruimte aan de voorzijde van de woning; laadpalen nabij • Centraal gelegen nabij alle faciliteiten en het openbaar vervoer • Opgang naar diverse uitvalswegen A4/A12/A13 in een paar minuten rijden • Oplevering in overleg Is uw interesse gewekt? Wacht niet te lang en ga naar Makelaarscentrum-Leidschenveen.nl en plan zelf uw bezichtiging. Snel, eenvoudig en wanneer het u uitkomt — 24 uur per dag, 7 dagen per week. Ook dat is de kracht van de lokale specialist. Deze informatie is met zorg samengesteld. Aan de juistheid kunnen echter geen rechten worden ontleend. Alle opgegeven maten en oppervlakten zijn indicatief. De woning is gemeten volgens de Meetinstructie, gebaseerd op de normen zoals vastgelegd in NEN 2580. De algemene verkoopvoorwaarden zijn te vinden op onze website. Wij werken conform de Algemene Consumentenvoorwaarden van Vastgoed Nederland. Heeft u vragen over deze woning of over onze dienstverlening, neem dan gerust contact met ons op. U kunt uiteraard ook uw eigen aankoopmakelaar inschakelen. Een aankoopmakelaar behartigt uw belangen en kan u veel tijd, geld en zorgen besparen.
| Referentienummer | 00750 |
| Vraagprijs | € 629.000,- k.k. |
| Status | Verkocht onder voorbehoud |
| Aanvaarding | In overleg |
| Aangeboden sinds | Maandag 6 april 2026 |
| Laatste wijziging | Woensdag 29 april 2026 |
| Type object | Woonhuis, eengezinswoning, tussenwoning |
| Soort bouw | Bestaande bouw |
| Bouwperiode | 2000 |
| Dakbedekking | Bitumen |
| Type dak | Platdak |
| Keurmerken | Energie prestatie advies |
| Isolatievormen | Dubbel glas HR-glas Spouwmuren Volledig geïsoleerd |
| Perceeloppervlakte | 156 m² |
| Woonoppervlakte | 155,8 m² |
| Woonkameroppervlakte | 40,9 m² |
| Keukenoppervlakte | 14,01 m² |
| Inhoud | 498 m³ |
| Oppervlakte externe bergruimte | 7,5 m² |
| Aantal bouwlagen | 3 |
| Aantal kamers | 6 (waarvan 5 slaapkamers) |
| Aantal badkamers | 1 (en 1 apart toilet) |
| Ligging | Aan rustige weg Beschutte ligging Dichtbij openbaar vervoer In woonwijk Nabij school Nabij snelweg Vrij uitzicht |
| Type | Achtertuin |
| Hoofdtuin | Ja |
| Oriëntering | Noord-oost |
| Heeft een achterom | Ja |
| Staat | Goed onderhouden |
| Tuin 2 - Type | Voortuin |
| Tuin 2 - Oriëntering | Zuid-west |
| Energielabel | A |
| CV ketel | Intergas HRE 28/24 CW4 |
| Warmtebron | Gas |
| Bouwjaar | 2018 |
| Combiketel | Ja |
| Eigendom | Eigendom |
| Warm water | CV-ketel |
| Verwarmingssysteem | Vloerverwarming (gedeeltelijk) Warmterecuperatiesysteem |
| Ventilatie methode | Mechanische ventilatie |
| Keukenvoorzieningen | Inbouwapparatuur |
| Badkamervoorzieningen | Ligbad Toilet Wastafel Wastafelmeubel |
| Glasvezelaansluiting aanwezig | Ja |
| Tuin aanwezig | Ja |
| Beschikt over een internetverbinding | Ja |
| Heeft schuur/berging | Ja |
| Heeft ventilatie | Ja |
| Kadastrale aanduiding | 's-Gravenhage BD 3764 |
| Perceeloppervlakte | 156 m² |
| Omvang | Geheel perceel |
| Eigendomsituatie | Eigen grond |