Beschrijving
** for translation - see English Funda page **
Stijlvolle tussenwoning met drie zeer grote slaapkamers, diepe achtertuin en balkon met weids uitzicht
Tegen de rand van de Nieuwe Driemanspolder vindt u deze uitgebouwde, stijlvolle woning met drie zeer grote slaapkamers en een diepe achtertuin. Een heerlijk rustige plek om te wonen; binnen een paar minuten staat u in het groene buitengebied en tegelijkertijd bent u op korte afstand van alle voorzieningen en de snelwegen. Bonus is het weidse uitzicht vanaf uw privéterras op de tweede woonlaag!
Zonnige woonkamer houten visgraatvloer en open keuken
De straat is zeer ruim opgezet en de bijzonder fraaie aangelegde voortuin zorgt voor een vriendelijke eerste indruk. Vervolgens loopt u de woning binnen in een stijlvolle hal. De visgraatvloer doet klassiek aan en loopt door richting de uitgebouwde woonkamer. Hier ziet u aan de achterzijde een grote raampartij en een deur naar de tuin.
De woonkamer vormt één geheel met de open keuken. De keuken is volledig tegen één wand geplaatst, waardoor de bewegingsruimte optimaal blijft. Hoge kasten en diepe laden zorgen voor veel bergruimte. Beige en donkerbruine tinten contrasteren met een granieten werkblad en een achterwand met witte tegels. Verder beschikt u over een vierpits gasfornuis en diverse inbouwapparatuur.
Vanuit de keuken heeft u uitzicht op de rietkraag en doorkijkjes in het polderlandschap met in de verte de beroemde molendriegang.
Eerste verdieping: slaapkamers en badkamer
De met tapijt beklede trap leidt naar de eerste verdieping. Hier bevinden zich twee bijzonder ruime slaapkamers. De hoofdslaapkamer kijkt uit over de achtertuin; de andere slaapkamer is gelegen aan de voorzijde van de woning.
Tussen beide kamers in vindt u de badkamer, waar u beschikt over een douche-/ligbadcombinatie, een houtlook wastafelmeubel met ronde spiegel en een zwevend, tweede toilet.
Er ligt een houten vloer in de slaapkamers en op overloop en datzelfde geldt voor de tweede verdieping. Bovendien zijn alle ramen op beide verdiepingen voorzien van horren.
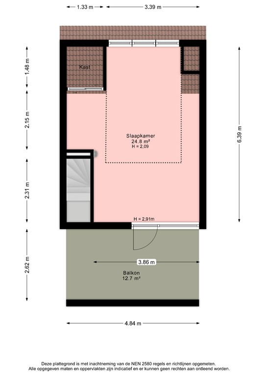
Tweede verdieping: grote multifunctionele ruimte met dakkapel en balkon
De volgende trap brengt u naar verdieping twee. Hier beschikt u over een zeer grote multifunctionele ruimte met aan de ene kant een dakkapel en aan de andere kant een groot raam en een deur die toegang geeft tot het balkon.
U kunt deze ruimte elke gewenste invulling geven. Wat te denken van een heerlijk grote slaapkamer voor uzelf of voor uw puberzoon- of dochter, al dan niet voorzien van een eigen badkamer? De wastafel is al aanwezig. Opsplitsen kan natuurlijk ook, met werkkamer en slaapkamer.
Voor inspiratie hoeft u alleen maar het balkon op te lopen. Doet u dat vooral even; het uitzicht is fantastisch!
De witgoedopstelling en de cv-ketel zijn onder het schuine dakvlak geplaatst.
Fraai aangelegde achtertuin
Terug op de begane grond nodigen we u graag uit om de achtertuin te bekijken. Deze is duidelijk met veel liefde aangelegd en onderhouden. Het speelse stenenpatroon in verschillende kleuren en de weelderige planten en boompjes geven de tuin een intiem en vriendelijk karakter. U kunt hier heerlijk genieten van de zon en als het wat te warm wordt, zorgt de elektrische zonwering voor schaduw en verkoeling. In de houten berging (ook bereikbaar via een achterom) is plek voor uw fietsen en tuingereedschap.
De voortuin had u al bewonderd; deze is in dezelfde stijl aangelegd. Parkeren kunt u direct voor de woning.
Rustig en centraal gelegen
Deze woning ligt in een rustige straat, aan de groene rand van Leidschenveen. Scholen (waaronder de British school) en kinderopvang vindt u op loop- of fietsafstand. Dat geldt ook voor het winkelcentrum en het gezondheidscentrum. De omgeving biedt veel speelmogelijkheden voor verschillende leeftijdsgroepen. Het openbaar vervoer is dichtbij (directe verbinding naar de Mall of the Netherlands) en de uitvalswegen A4 en A12 liggen op een paar autominuten. En voor fietsers en wandelaars is dit een fantastische uitvalsplek!
Samengevat:
• Stijlvolle woning, gelegen op enkele voetstappen van de Nieuwe Driemanspolder
• Woonoppervlak 127,1, inhoud 412 m³, gemeten volgens NEN2580
• Perceelgrootte 145 m², volledig eigendom
• Hal met toilet, visgraatvloer die doorloopt over de gehele begane grond
• Uitgebouwde woonkamer met sierhaard; open keuken voorzien van diverse inbouwapparatuur
• Eerste verdieping: twee zeer ruime slaapkamers
• Badkamer met douche-/ligbadcombinatie, wastafelmeubel en een zwevend, tweede toilet
• Tweede verdieping: grote multifunctionele ruimte met dakkapel (optie tot 4e slaapkamer)
• Toegang tot balkon met uitzicht op het polderlandschap en de beroemde drie molens
• Nis onder dakvlak met witgoedopstelling, cv-ketel (Nefit trendline hrc30 dw5, 2017) en MV-box
• Alle ramen op de verdiepingen zijn voorzien van horren
• Fraai aangelegde voortuin en achtertuin; houten berging met achterom
• Parkeergelegenheid direct voor de woning
• Centraal gelegen nabij alle faciliteiten en openbaar vervoer
• Opgang naar diverse uitvalswegen A4/A12 in een paar minuten rijden
• Oplevering in overleg – kan snel!
Is uw interesse gewekt?
Wacht niet te lang en bel Makelaarscentrum Leidschenveen om een afspraak te maken.
Deze informatie is met zorg samengesteld, aan de juistheid kunnen echter geen rechten worden ontleend. Alle opgegeven maten en oppervlakten zijn indicatief. De woning is gemeten met gebruikmaking van de Meetinstructie, die is gebaseerd op de normen zoals vastgelegd in NEN 2580. De algemene verkoopvoorwaarden staan vermeld op onze website, wij werken conform de Algemene Consumentenvoorwaarden van VBO Makelaar. Heeft u vragen over dit object of over onze dienstverlening, neemt u dan gerust contact met ons op.
Kortom, bel ons voor het maken van een afspraak of schakel direct uw eigen VBO/NVM aankoopmakelaar in. Uw aankoopmakelaar komt op voor uw belang en bespaart u veel tijd, geld en zorgen.
Plattegronden
Plattegrond begane grond perceel Arenastraat 24 - Den Haag.jpg
Plattegrond begane grond Arenastraat 24 - Den Haag.jpg
Plattegrond 1e verdieping Arenastraat 24 - Den Haag.jpg
Plattegrond zolder Arenastraat 24 - Den Haag.jpg